





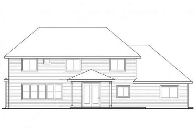
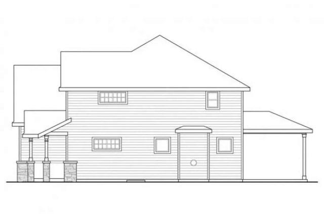
Bed Room
4
Bath Room
3
Floors
2
Garage
3
Sq Ft
3520
Width (ft)
64
Depth (ft)
55
4 Bed, 3 Bath, Traditional, European, Ranch, Cottage, Craftsman , Single Family House Plan
Plan Price
See What's Included$0
low price guarantee
Main Floor
4 Bed, 3 Bath, Traditional, European, Ranch, Cottage, Craftsman , Single Family House Plan
Plan Price
See What's Included$0
low price guarantee
Plan Description
What’s Included in this Plan
Plan Modifications
New to Plan Buying?
Reviews
Add Review Discover the latest in home design with our New Arrival Plans atBuyhomeplan.com. Our ever-growing collection features fresh, innovative designs that cater to modern living while maintaining timeless appeal. Whether you’re looking for a sleek contemporary layout or a cozy family home, our new arrivals offer something for everyone. Our New Arrival House Plans showcase a wide range of architectural styles and sizes, perfect for those who want the latest trends in homebuilding. From spacious multi-bedroom homes designed for growing families to compact and efficient designs for those who want to downsize, our new plans are thoughtfully crafted to meet diverse needs. Whether you’re drawn to modern simplicity, farmhouse charm, or the elegance of a luxury home, our latest collection has you covered. Looking for specific features? Our new arrivals include homes with open floor plans, outdoor living spaces, and modern amenities that maximize comfort and functionality. Many of our new plans are designed with energy efficiency and sustainability in mind, making them ideal for eco-conscious homeowners.
At Buyhomeplan.com, we’re committed to staying ahead of design trends while offering practical, livable spaces that fit your lifestyle. Explore our New Arrival House Plans today and be among the first to bring these exciting, contemporary designs to life! Whether you're planning to build a vacation home, a family residence, or a retreat, you'll find the perfect plan in our latest collection.Read Less
At Buyhomeplan.com, we’re committed to staying ahead of design trends while offering practical, livable spaces that fit your lifestyle. Explore our New Arrival House Plans today and be among the first to bring these exciting, contemporary designs to life! Whether you're planning to build a vacation home, a family residence, or a retreat, you'll find the perfect plan in our latest collection.Read Less
Latest From Our Blog
Frequently Asked Questions
About Buy Home Plan
About House Plan Styles
Why Buy Home Plan?
Lowest Price Guarantee
Free Home Plan Modification
Custom House Plans
Shipping, Return & Exchange Policy
















